O Relatório Ambiental Simplificado, também conhecido como RAS, é um documento de comprovação de serviço indispensável para empresas prestadoras de serviços e consultorias ambientais. E muitas dessas empresas já entenderam a importância de inovar para se diferenciar no mercado. Saiba como fazer isso!
Nem sempre é fácil atender às exigências dos clientes. Ainda mais no setor ambiental, onde um relatório ambiental simplificado, por exemplo, exige prazos determinados de entrega e informações padronizadas.
Dar conta de um estudo detalhado relacionado à infraestrutura de saneamento básico, apresentar subsídios para concessão de licenças requeridas, entre outras atividades, requer tempo e equipe em campo.
Atualmente, como você tem registrado os dados recolhidos em suas vistorias técnicas? Em papel, em Excel ou software especializado? Seja qual for a resposta, nesse texto você vai encontrar dicas e exemplos de como melhorar seu relatório ambiental e, assim, se destacar diante de seus concorrentes. Acompanhe!
Veja também: Modelo de relatório ambiental simplificado digital: experimente gratuitamente!
- O que é um relatório ambiental simplificado?
- Quais são os principais objetivos do relatório ambiental simplificado?
- Como elaborar um relatório ambiental simplificado?
- Quem pode fazer o relatório ambiental simplificado?
- Qual lei regulamenta o Relatório Ambiental Simplificado?
- Como se faz o licenciamento ambiental simplificado?
- Relatório ambiental simplificado exemplo
- Relatório ambiental simplificado PDF
- Os benefícios de migrar seu RAS para um aplicativo
- E, afinal, por que migrar para um aplicativo?
O que é um relatório ambiental simplificado?
O documento contém uma avaliação e estudos dos aspectos ambientais na localização, instalação e operação de novos empreendimentos, principalmente na fase da implantação de uma obra. Seguindo a Resolução nº 279/01 do Conselho Nacional do Meio Ambiente, CONAMA, o conteúdo mínimo que o relatório ambiental simplificado deve conter é:
- Descrição do projeto;
- Diagnóstico e prognóstico ambiental;
- Possíveis medidas de controle.





Quais são os principais objetivos do relatório ambiental simplificado?
O relatório ambiental simplificado tem o objetivo de definir medidas mitigadoras e/ou compensatórias para minimizar, monitorar ou eliminar impactos ambientais negativos. Com isso, é feito um pedido de licenciamento que assegura a viabilidade ambiental de um empreendimento.
Avaliar os impactos ambientais também assegura uma melhor qualidade da obra e, consequentemente, das comunidades ao redor.
Leia também: Sistema de Gestão Ambiental: o que é e como implementar?
Como elaborar um relatório ambiental simplificado?
Para que o documento possa subsidiar o licenciamento ambiental, pode acontecer uma reunião técnica informativa, apresentando o projeto de obra à população que será impactada pelo empreendimento. Veja a seguir, detalhadamente, quais informações devem constar no relatório.
Descrição do projeto
A primeira parte deve ter a descrição do projeto e suas alternativas tecnológicas e locacionais. Quais são os objetivos e justificativas, em relação à compatibilidade com as políticas setoriais, planos e programas.
Diagnóstico e prognóstico ambiental
Descrição dos possíveis impactos ambientais da implantação e operação da atividade,
considerando o projeto, suas alternativas e tempo aplicado. Indicar os métodos e critérios aplicados na identificação, quantificação e interpretação; caracterização da qualidade ambiental futura da área estudada.
Medidas de controle
Por fim, o documento deve listar as medidas mitigadoras preventivas e corretivas, indicando critérios mais favoráveis ao projeto. É importante criar um programa de acompanhamento, monitoramento e controle.
Leia mais – Retrofit: o que é e como fazer um projeto?





Quem pode fazer o relatório ambiental simplificado?
O estudo de impacto ambiental pode ser realizado por profissionais ou empresas especializadas em consultoria técnica ambiental. É ideal que a equipe seja multidisciplinar, contribuindo cada qual com sua área de conhecimento, desde engenheiros, geógrafos, biólogos, químicos e até antropólogos. Tudo vai depender da região, do intuito do empreendimento e seu porte.
Qual lei regulamenta o Relatório Ambiental Simplificado?
Como mencionamos anteriormente, o licenciamento ambiental é procedimento obrigatório regulado pela Resolução nº 279 do Conselho Nacional do Meio Ambiente, o CONAMA. Os empreendimentos também são impactados por outras leis que visam a preservação do meio ambiente, como a Lei nº 6.938/81, que estabelece punições quanto aos danos ambientais.
Leia mais – Como criar um checklist NR 12 e 3 modelos prontos para usar
Como se faz o licenciamento ambiental simplificado?
Cada esfera de órgãos ambientais – municipal, estadual e federal – possui suas exigências para emitir o licenciamento ambiental. Na esfera federal, o órgão responsável é o IBAMA, que deve ser consultado por empresas que exercem atividades em mais de um estado. Já nas esferas estaduais, a Lei 6.938/81 atribui a cada estado a competência de licenciar as atividades regionais. Já para licenças municipais, devem ser consultados os órgãos regionais, por exemplo: em São Paulo é o CONSEMA.
Após a realização do estudo ambiental, o documento deve ser submetido a estes órgãos para obtenção da licença.





Relatório ambiental simplificado exemplo
Vamos te mostrar os modelos de relatório ambiental simplificado mais utilizados. Muito provavelmente um deles é o que sua empresa já usa nos seus projetos. A ideia é apresentar opções que possam trazer inovação e evolução para as suas operações.
Modelo de RAS no papel
O uso do papel para criação do relatório ambiental é a forma mais antiga. Apesar de ser usual, esse formato já não supre com tanta agilidade as demandas do dia a dia. Afinal, como encontrar de maneira simples os históricos dos seus clientes em um monte de pilhas de papel?
Ou ainda, evitar os ruídos de comunicação por falta de preenchimento de campos importantes do relatório ou uma caligrafia não tão legível.
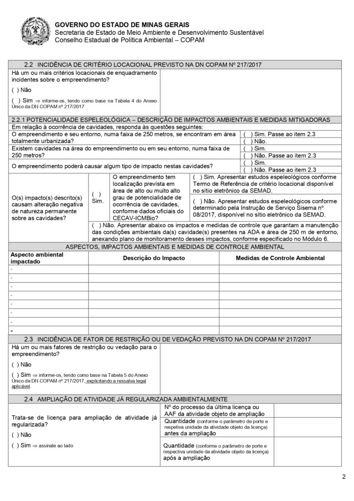
Temos também a demora da entrega desses relatórios, que muitas vezes precisam ser digitalizados quando chegam ao administrativo. Além de desperdiçar tempo, o risco de perder esses dados é enorme. Veja um exemplo da Secretaria do Meio Ambiente de Minas Gerais:




Modelo de RAS em Excel
Esse formato surgiu como uma pequena evolução do que citamos acima. Ele supre algumas necessidades que o papel não faz, como armazenar de maneira mais segura os dados gerados e ter um acesso mais fácil dessas informações.
O Excel funciona basicamente assim: o técnico vai à campo, preenche o formulário necessário, ao final da visita leva os papéis para o escritório que são passados para o Excel manualmente por uma pessoa do time.
Continuamos aqui com alguns pontos negativos: o fator tempo e mão de obra. Muitas empresas, com a crescente demanda, precisam contratar estagiários ou técnicos para realizar essa tarefa de passar de um formato para o outro.
E como os dados são extremamente importantes para ter um controle de tudo de forma rápida e automatizada, é preciso ter cuidado em dobro para não perder nenhuma informação, afinal falhas na operação podem causar perda de tempo e dinheiro.
Com prazos apertados, de geralmente 30 a 60 dias de entrega desses relatórios para o cliente, fica complicado entregar algo personalizado e visualmente bonito. Isso implica na confiabilidade e qualidade do seu negócio por parte do seu cliente.
Modelo de RAS no aplicativo
A tecnologia tem facilitado e agilizado a realização de estudos prévios, com preenchimento de formulários via aplicativo. É o caso do Produttivo: basta preencher o checklist pelo aplicativo no celular, e o relatório é gerado automaticamente em segundos, em PDF ou Excel, com todas as informações e fotos coletadas.
E como o aplicativo funciona na prática? Ele é a ferramenta do técnico, que vai coletar as informações em campo. É onde ele vai preencher todas as informações do formulário que você cadastrou.
No aplicativo existem muitas opções de respostas, todas configuráveis de acordo com suas necessidades. Algumas delas são: foto, questões de conformidade e não conformidade, marcação de GPS e várias outras.
Além disso, o app também conta com opções para agregar mais confiabilidade ao trabalho, como bloqueio de câmera e exigência das fotos serem tiradas na hora com informação de localização e data, marcação automática de hora e início de trabalho.
Feito o preenchimento, tanto o técnico, no aplicativo, quanto o pessoal administrativo, no computador, já podem gerar o RAS e enviar automaticamente para o cliente.





Relatório ambiental simplificado PDF
Quando o relatório digital substitui o papel, ele pode ser emitido em PDF pelo aplicativo do Produttivo, podendo o técnico compartilhar com o gestor ou cliente. As informações de cabeçalho são preenchidas automaticamente e o documento pode ser personalizado ainda no painel com cores e logo da empresa prestadora de serviço.
Veja um exemplo abaixo:






Os benefícios de migrar seu RAS para um aplicativo
Aqui no Produttivo, atendemos diversas empresas do setor ambiental. Desde companhias que fazem inspeção e manutenção em estações de tratamento de água e esgoto, até as que são especialistas na execução de serviços e projetos ambientais.
A grande maioria nos procurou para facilitar a rotina de trabalho, tornar a equipe mais produtiva e, principalmente, entregar relatórios de qualidade e com mais agilidade. Assim, se destacar no mercado de consultoria ambiental.
Veja também: RIMA: o que é Relatório de Impacto Ambiental?
E, afinal, por que migrar para um aplicativo?
Primeiro de tudo, precisamos pensar sobre a importância do relatório ambiental. Podemos considerá-lo como o coração do negócio, certo? Ele é o seu entregável. Quanto mais e melhor você fizer, maiores serão os ganhos para sua empresa, seja financeiramente ou para a satisfação da sua marca.
Já pensou perder contratos por não conseguir atender às exigências, não conseguir enviar o relatório na data pré-definida ou ter prejuízos com atividades que foram realizadas mas que não podem ser devidamente comprovadas por falta de evidências?
Fora todos esses pontos, são uma série de benefícios em usar a tecnologia a seu favor:
- Relatórios fotográficos: sem limites de fotos, as imagens dos terrenos ou cilindros, por exemplo, são anexadas diretamente no formulário, com opção de marca d’água com hora e data;
- Geolocalização: através de GPS é possível localizar o serviço, além dele registrar facilmente o horário de começo e fim das atividades;
- Padronização dos relatórios: além de ser totalmente personalizáveis, as informações podem ser gravadas e utilizadas para mais de um cliente, sem precisar preencher e criar inúmeros formulários ao mesmo tempo;
- Importação de planilhas: sabe o formulário enviado pelo cliente que você já usa como modelo? Ele não vai ser perdido de maneira alguma. Dentro de um aplicativo, como o Produttivo, esse documento pode ser importado, facilitando ainda mais a criação desses formulários personalizados;
Se você quiser testar na prática e conhecer mais vantagens, é só acessar o banner abaixo e experimentar gratuitamente!





